CONFIRA NOSSOS LANÇAMENTOS 2026!

Casa Standard III
É USUFRUIR
NÃO CONSTRUIR
ENTREGA EM 90 DIAS
CONFORTO TÉRMICO
ISOLAMENTO ACÚSTICO
SUSTENTABILIDADE
OTIMIZAÇÃO DE CUSTOS
PRECISÃO ORÇAMENTÁRIA
MENOR CONSUMO DE ENERGIA

CASA STANDARD III
-
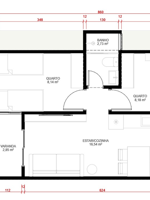
Casa 47m²
A Casa Standard leva o padrão da moradia pronta com a linha Comsteel Standard, traduzindo a tecnologia do Steel Frame painelizado em um projeto que une a velocidade da produção em série à estética de alto valor percebido.
Com 47m² de arquitetura inteligente e bem distribuída, conta com dois dormitórios, banheiro completo e área social integrada à cozinha e lavanderia, garantindo funcionalidade real para o dia a dia. A varanda externa amplia a experiência de morar, conectando interior e exterior com leveza e fluidez.
Projetada com linhas modernas e fachada contemporânea, a Casa Standard comprova que um projeto inteligente e acessível pode e deve ter um design que se destaca no mercado. Suas proporções equilibradas e seu desenho arquitetônico elevam o padrão do segmento, agregando valor imediato e potencial de valorização futura ao imóvel.
Construída por meio do sistema Steel Frame painelizado (com paredes que saem montadas da fábrica), a casa exige radier como base e fica pronta em aproximadamente 60 dias após o início da montagem na obra.
.png)
INFRAESTRUTURA
-
Estrutura em Steel Frame
-
Isolamento térmico e acústico
-
Instalação elétrica
-
Instalação hidrossanitária
-
Telhas termo-isolantes
-
Sistema hidraúlico com aquecimento
-
Cabeamento de rede
-
Infraestrutura para automação
-
Piso de Porcelanato
-
Manta hidrófuga (proteção a umidade, infiltrações e evita condensação)
-
Sistema de drenagem de água e proteções de paredes (Algerosas e rufos)
REVESTIMENTOS EXTERNOS
-
Fachada Ripada de pvc
-
Placa cimenticia (com pintura e textura)
-
Esquadrias alumínio branca
-
Arandelas de Led frente e fundos
REVESTIMENTOS INTERNOS
-
Forro de pvc
-
Piso porcelanato
-
Paredes de Drywall pintado com textura
COMPLEMENTARES
-
Espera para aquecedor à gás
-
Espera de gás na cozinha
-
Espera para energia fotovoltaica
-
Espera para ar condicionado
-
Luz de emergência
-
Iluminação externa
Itens inclusos
A Casa Standard da ComSteel vêm equipada com itens essenciais para o conforto diário, incluindo cozinha completa, casa de banho funcional, isolamento térmico e acabamentos modernos.
-
Contrapiso
-
Piso em porcelanato 60x60 cm, com insumos inclusos
-
Paredes internas com pintura acrílica
-
Paredes internas de banheiros, lavanderia, lavabo e cozinha com pintura epóxi
-
Paredes e piso do box dos banheiros em porcelanato 60x60 cm, com insumos inclusos
-
Rodapé em PVC (cores branca ou preta)
-
-
Portas internas de giro na cor branca (kit completo)
-
Vaso sanitário branco com caixa acoplada
-
Tampos, ralos e grelha quadrada em inox
-
-
Impermeabilização da cobertura
-
Esquadrias em alumínio na cor branca, com vidro simples
-
Funilaria com execução completa conforme projeto
-
-
Instalações elétricas e hidráulicas conforme quantidades de pontos descritas em memorial
-
Limpeza final de obra e remoção de entulhos
-
Gerenciamento completo da obra
-
Itens não inclusos
Itens como eletrodomésticos, eletrônicos, decoração e enxoval não estão inclusos na entrega da Tiny House, o que permite ao proprietário personalizar o espaço com seu estilo e necessidades. A boa notícia é que toda a linha de produtos está disponível na SteelShop, facilitando a escolha e a compra dos itens ideais para completar seu novo lar.
-
Não estão inclusos revestimentos decorativos em paredes internas
-
Não estão inclusos revestimentos em brises ou elementos semelhantes
-
-
Não está incluso o ensaio de SPT do terreno para fundação
-
Não estão inclusas lajes específicas para suporte de caixas d’água, boiler ou outros equipamentos
-
-
Não estão inclusas edificações externas como: muros, calçadas, rampas, decks, casa de gás, pisantes e similares
-
Não estão inclusas fossa séptica, sumidouro e respectivas instalações
-
-
Não estão inclusas despesas com hospedagem, alimentação e alojamento
-
Acabamentos
A Casa Standard tem como principal característica um projeto arquitetônico inteligente e contemporâneo. Seus acabamentos internos e externos foram pensados para criar uma identidade forte, valorizando o imóvel e elevando o padrão construtivo dentro da sua categoria. A combinação de materiais e soluções modernas resulta em um visual atual e bem resolvido, entregando um ambiente agradável, funcional e visualmente marcante. Isso torna a Casa Standard uma escolha desejada por quem busca praticidade, conforto e um projeto que se destaca no mercado.

Placa cimentícia Texturizada
Modernidade e resistência num só painel.

Telha Isotérmica
Beleza atemporal com textura sofisticada.

Piso Porcelanato
Proteção robusta com estilo industrial.
RECEBA O PROJETO COMPLETO DA
CASA STANDARD
Preencha seus dados e receba no seu e-mail todas as plantas, especificações técnicas e o material exclusivo com tudo o que você precisa saber para dar o próximo passo rumo à sua Casa dos sonhos.
Projetamos para você usufruir e não construir.
_PNG.png)
%20(3).png)
.png)









